Make a Call : +8615559090996
Get A Estimate : senko@fjsenko.com
Abarisan pengeluaran blok dinding dan lantai dengan rak bata keluli ialah gabungan peralatan automatik yang digunakan dalam pengeluaran jubin dinding dan lantai. Ia membolehkan operasi berterusan proses pengeluaran, termasuk satu siri langkah dari penempatan jubin, penyampaian, pengawetan, pemprosesan kepada pembungkusan produk siap, meningkatkan kecekapan pengeluaran dan kualiti produk. Dengan menyediakan mekanisme pengawetan, ia bukan sahaja menggunakan motor penghantar untuk mengangkut jubin dinding dan lantai, tetapi juga menggunakan pam air luaran yang disambungkan kepada sumber air pengawetan dan muncung pengawetan untuk menyembuhkan jubin. Blower, dilengkapi dengan bilah udara, cepat mengeluarkan air dari permukaan jubin.
Barisan Pengeluaran Blok Dinding & Lantai dengan rak bata keluli(Model:QDZX-2000)
Barisan pengeluaran bata automatik sepenuhnya, barisan pengeluaran jubin dinding dan lantai.
Susun atur Projek:
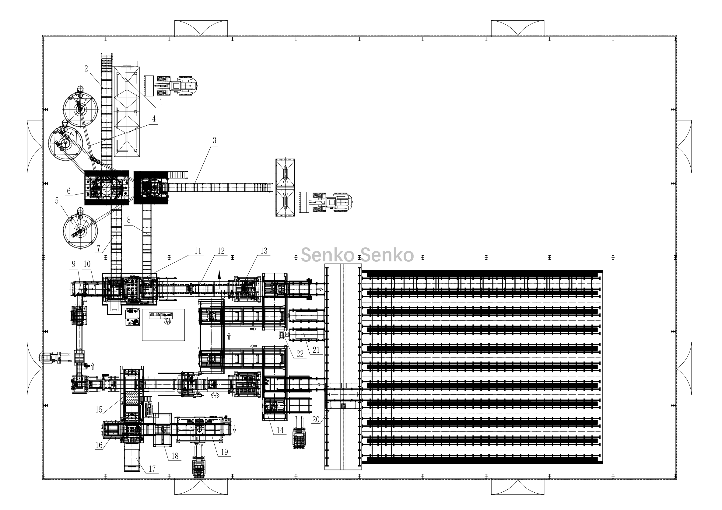
Penyelesaian satu: Tanur pengawetan hanya mempunyai satu bahagian bukaan, dan ia menghadap ke seluruh mesin.

| 1, Mesin batching | 2, penghantar bahan asas | 3, penghantar bahan asas | 4, penghantar lingkaran | 5, penghantar lingkaran | 6, Pengadun |
| 7, penghantar bahan asas | 8, penghantar bahan asas | 9, penyuap palet hidraulik | 10, pemakan palet | 11, Mesin membentuk blok | 12, penghantar blok |
| 13, Lif Pallet | 14, Pemindahan rak | 15, Penyusun blok | 16, Penyimpanan dulang kayu | 17, Mesin pembalut filem | 18, Mesin pembohong filem |
| 19, Mesin pelucutan berputar atas | 20,RGV | 21, Troli pemindahan | 22, Stesen pengecasan |
Penyelesaian dua:Tanur pengawetan hanya mempunyai satu bahagian bukaan, dan ia menghadap ke seluruh mesin.

| 1, Mesin batching | 2, penghantar bahan asas | 3, Pengadun | 4, silo simen | 5, penghantar simen | 6, penghantar campuran |
| 7, Membentuk mesin | 8, penghantar palet | 9, Pallet memuatkan dalam rak | 10, pemindahan rak | 11, makan rak pada RGV | 12, troli pemindahan RGV |
| 13, Sekat tanur pengawetan | 14, Pallet memunggah dari rak | 15, Penghantar sebelum lif | 16, Lif Pallet | 17, Pemisah blok dan palet | 18, Mesin susun blok |
| 19, Penghantar tindanan | 20, Mesin pelucutan pembungkusan | 21, penghantar palet kosong | 22, Palletizer | 23, penghantar timbunan palet | 24, Pemuatan palet |
Penyelesaian tiga: Satu tanur pengawetan dengan dua set mesin pembentuk dan pembungkusan untuk pelbagai jenis produk.

| 1, mesin batching | 2, penghantar bahan asas | 3, Pengadun | 4, silo simen | 5, penghantar lingkaran | 6, Membentuk mesin |
| 7, penghantar palet bata | 8, Pallet makan ke rak | 9, Unit pemindahan rak | 10, Pemindahan troli | 11,RGV | 12, Relau pengawetan |
| 13, Pallet tidak disuap dari rak | 14, Pemisah bata dan palet | 15, Penyusun bata | 16, Mesin pembohong filem | 17, Bingkai storan dulang | 18, Unit pembalut filem |
| 19, Mesin pelucutan | 20, Palletizer kosong | 21, penghantar timbunan palet | 22, penghantar rak kosong | 23, Lif palet bata | 24, penukar palet bata |
| 25, Mesin pelucutan | 26, Pallet makan ke talian | 27, Bingkai penyimpanan palet |
Kelebihan produk:
1. Meningkatkan kecekapan pengeluaran: Proses pengeluaran automatik mengurangkan campur tangan manual dan keamatan buruh, membolehkan pengeluaran berterusan dan cekap, yang sangat meningkatkan pengeluaran jubin dinding dan lantai;
2. Pastikan kualiti produk: Pemuatan jubin yang tepat, kawalan penghantaran dan pemprosesan, serta persekitaran pengawetan yang stabil, membantu memastikan penunjuk kualiti jubin dinding dan lantai, seperti ketepatan dimensi, kerataan dan kekuatan, dan mengurangkan kadar kecacatan.
3. Mengurangkan kos pengeluaran: Walaupun pelaburan peralatan adalah besar, dalam jangka masa panjang, ia dapat mengurangkan kos pengeluaran seunit produk dengan berkesan dengan meningkatkan kecekapan pengeluaran dan mengurangkan kos buruh dan sisa bahan mentah;
4. Meningkatkan keselamatan pengeluaran: Ia mengurangkan hubungan langsung antara manusia dan proses pengeluaran berbahaya seperti suhu tinggi dan operasi berkelajuan tinggi, mengurangkan kejadian kemalangan di tempat kerja, dan meningkatkan keselamatan proses pengeluaran.
Senario Aplikasi

TAG :